Энергоэффективные решения Aircut для применения в сложных технических условиях
Анализ практики проектирования оборудования приточных и вытяжных установок систем вентиляции и центральных кондиционеров позволил определить ряд проблем, возникающих при проектировании:
- значительное теплопотребление систем вентиляции и кондиционирования воздуха на подогрев приточного наружного воздуха в холодный период года;
- необходимость увеличения энергоэффективности вентиляторов для снижения потребляемой ими электроэнергии;
Первая проблема решается применением утилизаторов теплоты вытяжного воздуха: регенеративного типа (роторных), перекрестноточных рекуперативного типа (пластинчатых) и систем утилизации теплоты с промежуточным теплоносителем.
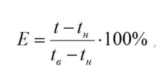
Эффективность теплообмена утилизаторов теплоты для приточного воздуха оценивается безразмерным показателем (коэффициентом температурной эффективности)

где t - температура воздуха на выходе из утилизатора теплоты, °С;
tн - температура наружного воздуха (на входе в утилизатор теплоты), °С;
tв - температура внутреннего воздуха (на входе в утилизатор теплоты), °С.
Рассмотрим более подробно применение роторных утилизаторов теплоты регенеративного типа, как наиболее эффективных (коэффициент температурной эффективности для таких устройств равен 0,65 – 0,8) – рис. 1.

Рисунок 1.
Применение вращающихся регенераторов наиболее целесообразно в прямоточных системах, в которых по санитарно-гигиеническим требованиям допускается устройство рециркуляции воздуха, а также в обычных системах, когда рециркуляция воздуха оказывается неэффективной. Вращающиеся регенераторы можно применять наряду с рециркуляцией или взамен ее.
Во вращающихся регенераторах передача теплоты обеспечивается за счет постоянного вращения теплоаккумулирующего ротора, извлекающего теплоту более нагретого воздуха и отдающего её холодному воздуху.
Вращающиеся регенераторы могут выполняться с насадкой из негигроскопичных коррозионноустойчивых материалов, образующих ячеистую, щелевую или сетчатую структуру с толщиной листов 0,07 – 0,2 мм (чередующиеся гладкие и гофрированные листы металлической фольги).
Во вращающихся регенераторах с негигроскопическим ротором одновременно с передачей явной теплоты может происходить перенос скрытой теплоты в виде сконденсировавшейся влаги на поверхности ротора, когда температура поверхности ротора оказывается ниже температуры точки росы охлаждаемого воздуха.
Во вращающихся регенераторах с гигроскопичным ротором теплообмен сопровождается переносом влаги независимо от температуры поверхности ротора.
Характерные особенности вращающихся регенераторов (роторного типа):
- высокая компактность (величина поверхности в единице объема составляет 1 500 – 3 000 м2/м3);
- небольшая масса;
- возможность использования высокоэффективных теплообменных поверхностей с малыми эквивалентными диаметрами (dэ=1-3 мм);
- легкость осуществления противоточного движения воздуха для обеспечения наибольшей эффективности;
- неизменность аэродинамического сопротивления при сухом теплообмене и при теплообмене с конденсацией влаги;
- передача большего количества теплоты в режимах совместного тепло- и массообмена по сравнению с рекуператорами;
- наличие взаимного перетекания воздушных потоков в результате вращения насадки, а также через уплотнения в корпусе.
Понимая преимущества и эффективность вращающихся роторных рекуператоров, компания Aircut широко применяет данные решения в своих проектах.
Экономия электроэнергии за счет применения EC - двигателей
ЕС-мотор - это бесколлекторный (бесщеточный) синхронный мотор постоянного тока с магнитными сегментами в роторе с интегрированным электронным коммутатором.
Преимущества EC–технологии:
- Высокая плавность вращения;
- Широкий диапазон номинального напряжения;
- Высокий КПД (КПД мотора свыше 90%) – снижение эксплуатационных расходов на 30%;
- Высокая перегрузочная способность;
- Низкий уровень шума;
- Компактное исполнение;
- Длительный срок службы (более 40 000 часов, т.е. 4,5 года непрерывной работы), не требует сервисного обслуживания;
- Возможность управления без дополнительного оборудования.
Сравнение технических решений Aircut по применению энергоэффективного оборудования, показывает её преимущества по сравнению с аналогичным оборудованием других европейских производителей.
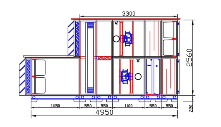
В качестве примера рассмотрим техническое решение приточно-вытяжной установки одного из известных европейских производителей (рис.2) производительностью по приточному и удаляемому воздуху 60 000 м3/ч с роторным утилизатором теплоты, имеющим коэффициент температурной эффективности 0,65.

Рисунок 2. (установка Aircut на крыше)
В установке применен роторный утилизатор теплоты Enventus диаметром 2 900 мм и вентиляторы со «свободно вращающимся колесом со стандартным электродвигателем».
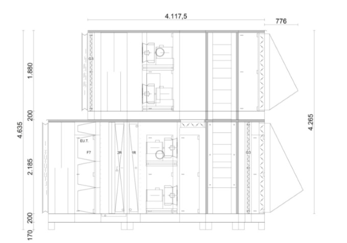
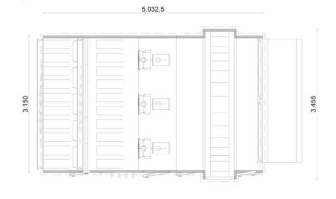
Компанией Aircut рекомендовано и применено другое техническое решение (рисунки 3, 4):
параллельная установка двух вращающихся регенераторов в бескаркасной установке; установка нескольких параллельно работающих вентиляторов в приточной и вытяжной частях установки с EC-электродвигателями.


Рисунок 3. (Схема бескаркасной приточно-вытяжной установки Aircut с роторным рекуператором)


Рисунок 3. (Схема каркасно-панельной установки Европейского производства) Такое решение позволило:
- повысить эффективность роторного утилизатора теплоты на 7,8%. Соответственно, коэффициент температурной эффективности составил 0,701;
- уменьшить аэродинамическое сопротивление установки с вентиляционной сетью: в приточной части на 20,2% и в вытяжной части – на 17,4%.
Данное решение реализовано и работает на крупном детском игровом центре в Москве.
На рис.5 приведена оценка экономии тепловой энергии при применении роторных утилизаторов теплоты при круглосуточной круглогодичной работе установок в Москве. Годовая экономия тепловой энергии при применении установок Aircut на 110 700 кВт·ч превышает экономию теплоты в сравниваемых европейских установках.

Рисунок 5. (График экономии тепловой энергии)
Сокращение потребления электрической энергии при применении установок «Аиркат» составило за год 121 150 кВт·ч (16,6%). Для сравнения на рис. 6 приведено расчетное месячное потребление электрической энергии для двух установок.

Рисунок 6. (График экономии электрической энергии)
Значительная экономия энергетических ресурсов соответственно снижает затраты на эксплуатацию комплекса, а соответственно повышает прибыльность бизнеса.
Также на объекте реализована система диспетчеризации инженерных систем, которая позволяет повысить эффективность эксплуатации, отслеживать и управлять системами в режиме реального времени и получать актуальную информацию о потреблении энергетических ресурсов различными инженерными комплексами.