Сдан первый проект системы увлажнения DRAABE в Самаре
Впервые в Самаре была спроектирована система адиабатического (форсуночного) увлажнения воздуха для загородного дома на базе оборудования DRAABE.
Только сейчас по согласованию с заказчиком нам разрешен показ выдержек из проекта без реальных фотографий реализованной системы увлажнения.
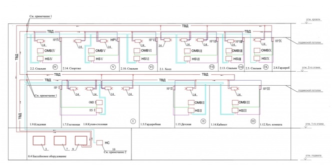
Поэтажный вертикальный разрез
…предыстория
Наш заказчик – владелец собственного бизнеса, мужчина с активной жизненной позицией, с хорошим материальным достатком и крепкой семьей. Супруга заказчика – утонченная интеллигентная женщина, переживающая о здоровье детей, их самочувствии и комфорте, а также о сохранении собственной красоты и молодости. Все члены семьи – приверженцы здорового образа жизни.
Заказчик был обеспокоен тем, чтобы в новом доме были учтены все недоработки прошлых строительств. Поэтому перед нами была поставлена задача - создать максимально комфортный микроклимат с обеспечением сохранности дорогостоящих натуральных предметов интерьера (деревянной лестницы, мебели из красного и черного дерева, паркета из американского ореха).
Почему именно DRAABE?
Draabe заказчик выбрал до обращения к нам. На нас, как на представителя Draabe в Самаре вышел архитектор заказчика. Причины выбора данного производителя две.
Первая: доверие к немецкому качеству.
Вторая: DRAABE – одна из лучших энергоэффективных систем увлажнения воздуха в помещении, существующих на рынке. Бесшумная в работе, с автоматической регулировкой уровня влажности, с возможностью интеграции в систему Умный дом, гигиенически безопасная, не оставляющая белого налета на мебели.
С чем пришлось столкнуться в процессе работы над проектом?
На момент составления техзадания на проектирование системы увлажнения дом был на стадии возведения стен. Системы вентиляции, кондиционирования, отопления, водоотведения были уже спроектированы.
Куратором проекта со стороны инженерной компании НЕО Стиль был руководитель климатического направления Харченко Алексей. Экспертом со стороны завода-производителя выступил Robin Pfefferkorn.
Проект по увлажнению дома в обязательном порядке учитывал готовые проекты вентиляции и кондиционирования, но всё же их пришлось скорректировать.
Второй важный момент – это качество воды для водоподготовки системы. Нам пришлось брать на анализ воду из трех скважин, прежде чем мы нашли примерно подходящую нам воду по химическому составу.
И всё же, по согласованию с немецкими коллегами, выбранную воду пришлось очищать. Мы усилили водоподготовку дополнительным оборудованием DRAABE, что привело к удорожанию реализации проекта.
Сколько стоит система?
Площадь дома немногим меньше 1000 м². Проект рассчитан на 10 зон, суммарная площадь которых оставляет 570 м². Это винный погреб на нулевом этаже; на первом этаже – это кухня, гостиная, коридор, кабинет и детская. На втором этаже – три спальни, спортзал и коридор. Смета на реализацию проекта составила 200 €/ м² обслуживаемой зоны.
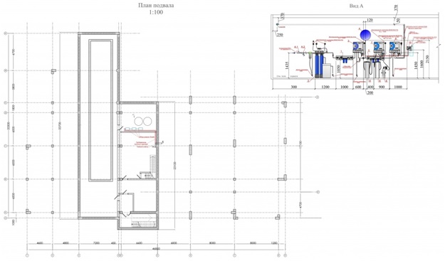
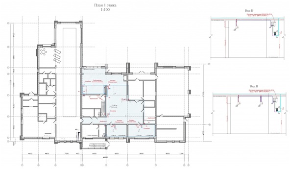
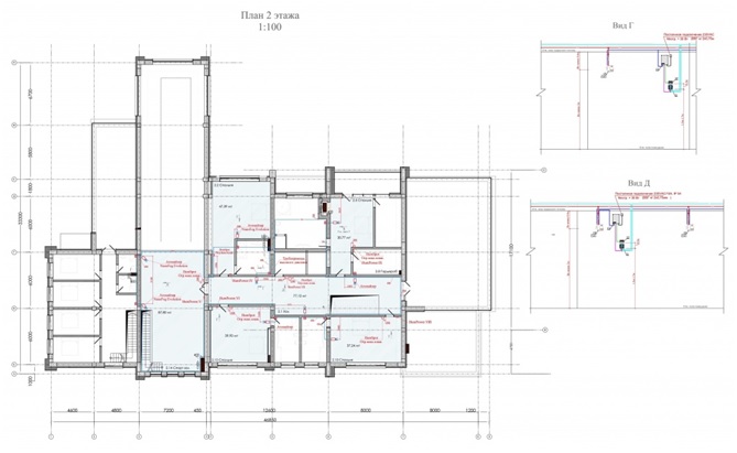
Аксонометрическая схема расположения атомайзеров (форсунок)
Предлагаем Вашему вниманию видео о тихой работе атомайзера Draabe:
Фотографии других реализованных проектов Вы можете посмотреть здесь.
НЕО Стиль - ИНЖЕНЕРНЫЕ РЕШЕНИЯ, ДОСТОЙНЫЕ ЛУЧШИХ
Swegon тур в Самаре
Обновление акции ко Дню святого Валентина: по увлажнению в подарок!





