Важный шаг к энергоэффективности на ледовых аренах
Представляем Вашему вниманию статью, подготовленную специалистами компании United Elements Engineering, эксклюзивного поставщика осушителей бренда Cotes.
Главными на ледовых аренах, несомненно, являются мастерство и опыт участников, которые достигаются в результате многочасовых и напряженных тренировок. Тем не менее, нельзя недооценивать важность качества льда.
Адсорбционные осушители, разработанные высококвалифицированной датской Компанией Cotes A/S, служат для поддержания и сохранения профессионального и качественного льда на ледовых аренах. Они отличаются высоким качеством, простотой в эксплуатации и надежностью, подбираются индивидуально для каждого ледового объекта и дополнительно укомплектовываются необходимыми опциями.
Адсорбционные осушители Cotes неоспоримо помогают бороться с трудностями, создаваемыми высокой влажностью на катках:
- улучшение качества льда за счет предупреждения конденсации влаги на его поверхности;
- предотвращение образования тумана над ледовой площадкой;
- предотвращение конденсации влаги на прозрачных ограждениях хоккейной площадки;
- сокращение энергетической нагрузки на холодильные машины за счет предотвращения утолщения слоя льда в результате конденсации влаги на его поверхности;
- снижение ощутимых запахов;
- предотвращение повреждения интерьеров и коррозии металла за счет конденсации влаги на ограждающих конструкциях, подверженных радиационному выхолаживанию;
- предотвращение капежа конденсируемой влаги с внутренней поверхности кровли в целях сохранения идеально гладкой поверхности льда (в особенности, на дорожках для керлинга);
- предотвращение образования грибков и плесени.

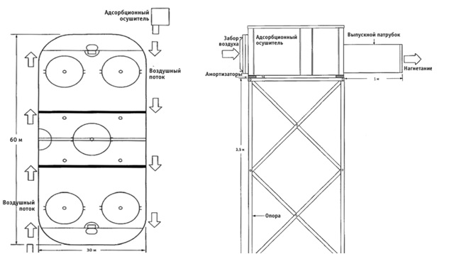
Рис.1. Типовой пример установки адсорбционных осушителей воздуха план/разрез.
Основной элемент осушителя – это ротор, на 82% заполненный высокоэффективным силикагелем. Высокий процент заполнения силикагелем, а также оптимальный размер пор насадки обеспечивают интенсивную адсорбцию избыточной влаги при минимальном потреблении энергии. Данные адсорбционные осушители обеспечивают круглогодичное поддержание оптимальных параметров микроклимата внутри закрытых спортивных ледовых сооружений. В отличие от процесса осушения воздуха в воздухоохладителях, на поверхности которых температура точки росы не может быть ниже +30 0 С, осушение воздуха в адсорбционных установках может производиться до самых низких параметров по температуре и влажности. Глубокое осушение воздуха в спортивном комплексе даже в условиях жаркого и влажного климата позволяет предотвратить конденсацию влаги на льду и ограждениях при игре в хоккей.
С каждым годом интерес к адсорбционным осушителям в нашей стране заметно растет.
Яркими примерами агрегатов Cotes, установленными на ледовых аренах в России, являются:
|
Модель установленного осушителя |
Объем обрабатываемого воздуха, м3/ч |
Кол-во установок |
Город |
|
CRT6000E |
6000 |
1 |
Уссурийск |
|
CR2500 |
2500 |
2 |
Тверь |
|
CRP18000E |
18000 |
2 |
Санкт-Петербург |
|
CRT18000E |
18000 |
2 |
Ульяновск |
|
CRT3000E |
3000 |
2 |
Москва |
|
CRT3000E |
3000 |
2 |
Владивосток |
|
CRT6000E |
6000 |
2 |
Владивосток |
|
CR2000 |
2000 |
2 |
Тюмень |
|
CR2000 |
2000 |
2 |
Тюмень |
|
CR5000T |
5000 |
2 |
Крым |
|
CR2000 |
2000 |
2 |
Челябинск |
|
CRT6000E |
6000 |
2 |
Оренбург |
Компания Cotes A/S имеет более восьмидесяти референс-объектов с ледовыми аренами по всему миру.
Хочется привести в пример также несколько оригинальных проектов Компании Cotes. Один из них – это зимний спортивный центр Skidôme Rucphen в Нидерландах с настоящим снегом. В сентябре 2001 центр был полностью отремонтирован и расширен, в том числе зал для картинга на льду площадью 3500 м 2 . Карты имеют электрические моторы, их шины оснащены шипами для максимального сцепления, скорость картов достигает 80 км/ч, поэтому требования ко льду очень высокие.

Рис. 2. Спортивный центр Skidôme Rucphen в Нидерландах.
Инженеры, проектировавшие центр, изначально не учли сочетание очень низкой температуры и высокой влажности (0 0 С, 100%) и, предусмотренная изначально система естественной вентиляции не справлялась с высокой влажностью. В результате имели место следующие проблемы – постоянные наросты льда на осветительных приборах, детекторах дыма, зарядных устройствах для картов и на стальных конструкциях здания; туман, нарушающий видимость; конденсат на потолке, капающий на лед и на посетителей. Сотрудники ощущали дискомфорт при работе, а их одежда была постоянно влажной.
В процессе ремонта был установлен осушитель Cotes CRT9000Е, который понизил относительную влажность до 60%. Уже через несколько часов после запуска осушительного оборудования туман полностью исчез. В первые сутки работы оборудования стало заметно, что наледь с потолка и осветительных приборов исчезает. Привлекательный дизайн и низкий уровень шума позволили установить агрегат рядом с ледяной дорожкой.

Рис.3. Осушитель CRT9000Е, установленный в спортивном центре Skidôme Rucphen в Нидерландах.
Еще один оригинальный проект – это Хоккейная «КВИК Арена» в Дании в г. Хернинг.
«КВИК Арена» включает 2 катка – главный и учебный. Основная обеспокоенность владельцев заключалась в том, что осушитель на основном катке работал без остановки все время, поэтому было принято решение об изменении системы осушения. Осушитель на основном катке был заменен на осушитель модели CRT9000EV, а старый осушитель установили на тренировочном катке. Для предварительного нагрева воздуха регенерации оба осушителя стали использовать избытки энергии от системы отопления и охлаждения здания, которые ранее терялись впустую. Также важно, что оба осушителя стали управляться по показателям точки росы, а не по показателям относительной влажности.

Рис. 4. Контроль влажности на Хоккейной арене КВИК в Дании.
Правильная настройка и мониторинг точки росы снизили затраты на 6 700 Euro в месяц. С точки зрения эксплуатации это также отличное решение, т.к. все, что требуется, это замена фильтров и обслуживание осушителей раз в год.

Рис. 5. Осушитель CRT9000EV, установленный на Хоккейной арене КВИК в Дании.
Прошедший в Минске ежегодный конгресс ИИХФ назначил датские города Копенгаген и Хернинг местами проведения чемпионата мира по хоккею 2018 года. В Копенгагене, столице Дании, будет главная арена, а вторая будет располагаться в самом хоккейном городе Дании Хернинге.
«КВИК Арена» местного легендарного клуба "Хернинг Блю Фокс" будет использована в качестве тренировочного катка.
Таким образом, установки Cotes адаптируются под любые требования конкретного объекта и технико-экономические пожелания Заказчика.
Компания Cotes A/S предъявляет высокие требования к производимой продукции, поэтому осушители отличаются высокой производительностью, ремонтопригодностью и требуют низких эксплуатационных затрат. Все ключевые компоненты стандартизированы и легкодоступны, что значительно упрощает и удешевляет ремонт при необходимости. Оборудование изготовлено из качественных материалов, легко чистится, благодаря чему отвечает высоким гигиеническим требованиям и широко используется в фармацевтической и пищевой промышленности.
Компания «Юнайтед Элементс Инжиниринг» является эксклюзивным дистрибьютором Компании Cotes A/S на территории Единого Таможенного Союза.