c  900
до 1800

8 800 333-33-40

Звонок и с мобильного по России бесплатный

  •  

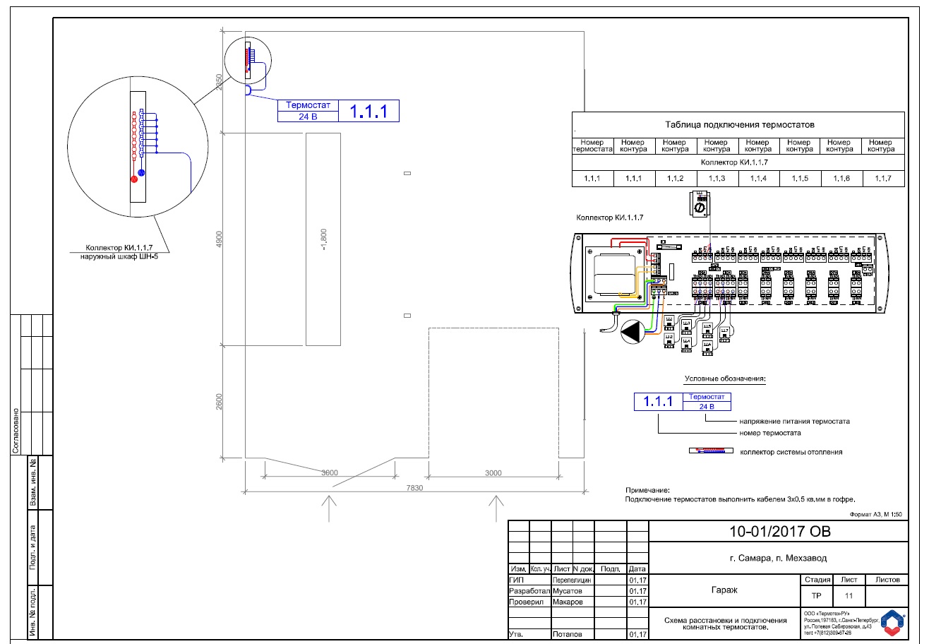
Выполненный проект: Водяной теплый пол в Самаре

∨ Показать карту ∨

Закончен монтаж водяного теплого пола в частном гаражном боксе в Самаре.

Водяной теплый пол в Самаре

Проект осуществлен самарской проектно-монтажной компанией НЕО Стиль на базе безрадиаторного отопления водяной теплый пол TM Thermotech.

Водяной теплый пол в Самаре Водяной теплый пол в Самаре Водяной теплый пол в Самаре

Объект интересен тем, что отопление осуществлено только водяным теплым полом.

Водяной теплый пол в Самаре Водяной теплый пол в Самаре Водяной теплый пол в Самаре Водяной теплый пол в Самаре

Согласно проекту температура теплоносителя (пропиленгликоль) на подаче составила всего 45˚C.

Не перетапливая помещение и уменьшив нагрузку на энергоэффективный  газовый котел BAXI, удалось уложиться в отведённый расход природного газа - 1 м³/ч.

Водяной теплый пол в Самаре Водяной теплый пол в Самаре Водяной теплый пол в Самаре Водяной теплый пол в Самаре

НЕО Стиль - ИНЖЕНЕРНЫЕ РЕШЕНИЯ, ДОСТОЙНЫЕ ЛУЧШИХ

Другие проекты

для квартиры

для офиса

для коттеджа

для кафе/ресторана

для общественных / промышленных помещений